大阪市の貸事務所・貸オフィスはパワーオフィス|NLC > 株式会社NLCの記事一覧 > 駅徒歩3分の好立地オフィス!【NLC新大阪三洋ビル】

駅徒歩3分の好立地オフィス!【NLC新大阪三洋ビル】

こんにちはNLCです。
今回はNLC新大阪三洋ビルのご紹介です。


3WAYアクセス可能の好立地オフィス!
近隣に無料貸会議室も完備しています。



■物件情報■

住所:〒532-0011 大阪府大阪市淀川区西中島4丁目4-6

アクセス:大阪メトロ 御堂筋線 西中島南方駅 徒歩3分
     阪急京都線 南方駅 徒歩5分
     JR・御堂筋線 新大阪駅 徒歩10分

構造:鉄筋コンクリート造 5階建て

築年数:1987年4月

□■□■□■□■□■□■□■□■□■□■□■□■□■□■□■□■□■□■□■□■□■□■□■□

■募集■

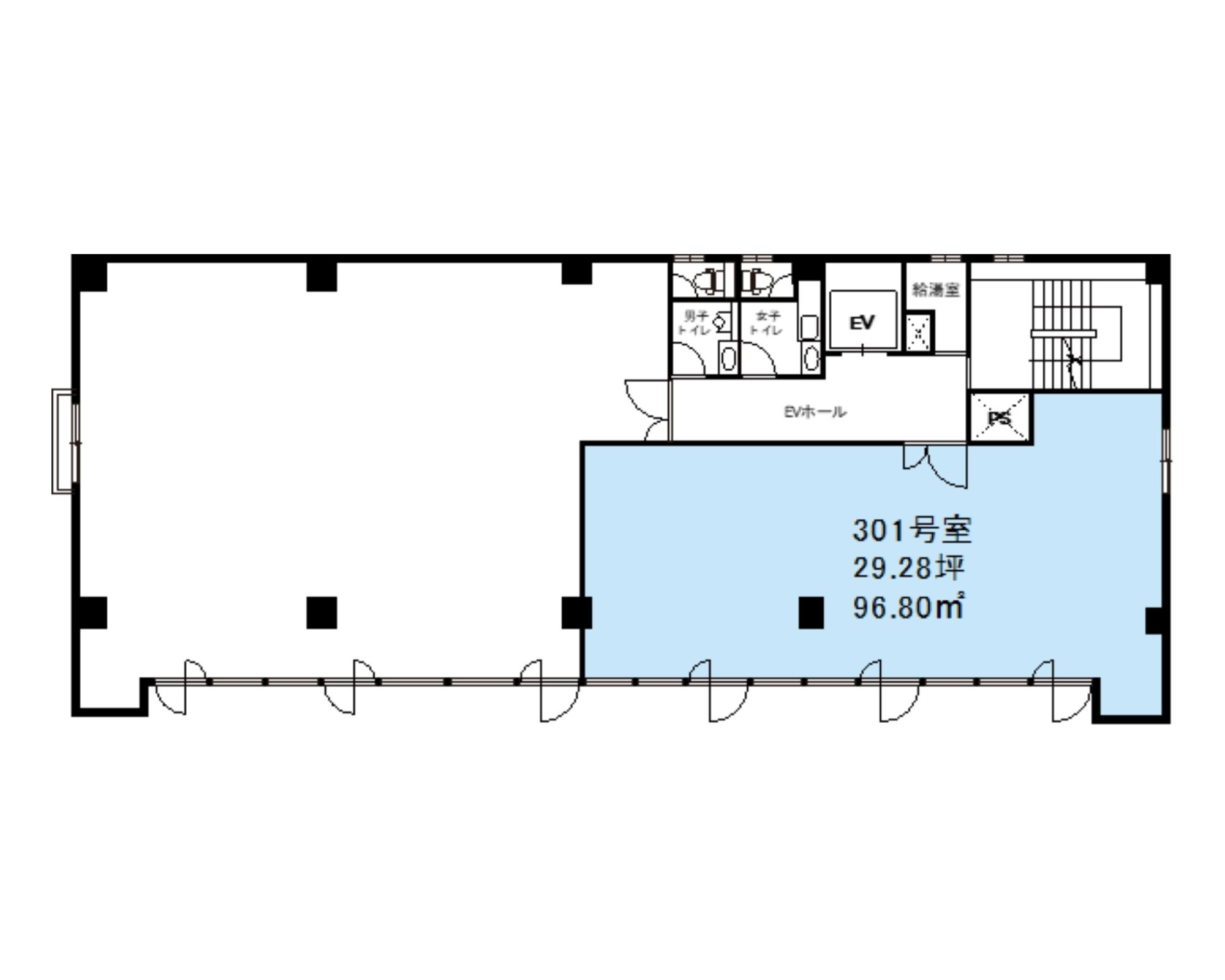
◎301:29.28

■設備■

・近隣無料貸会議室使用可能(ホワイトボード、Wi-Fiあり)
・新耐震基準
・LED照明設置済み
・月極駐車場完備



■間取り■



■共用部写真■



近隣の
貸会議室無料で使用可能です!



□■□■□■□■□■□■□■□■□■□■□■□■□■□■□■□■□■□■□■□■□■□■□■□




最後までご覧いただきありがとうございました!
賃料などの詳細は下記QRコード、又は当サイト内検索よりご覧いただけます♪↓↓



何か気になる事がございましたら、ぜひお問い合わせください。
ご連絡お待ちしております!

株式会社NLC
☎0120-515-503
≪ 前へ|同ビル無料貸会議室あり!大通り沿い角ビル【NLCセントラルビル】   記事一覧   駅徒歩1分の角地で視認性良好◎3WAYアクセス【NLC新大阪パワービル】|次へ ≫

トップへ戻る