大阪市の貸事務所・貸オフィスはパワーオフィス|NLC > 株式会社NLCの記事一覧 > 同ビル無料貸会議室あり!大通り沿い角ビル【NLCセントラルビル】

同ビル無料貸会議室あり!大通り沿い角ビル【NLCセントラルビル】


こんにちはNLCです。
今回はNLCセントラルビルのご紹介です。

3WAYアクセス可能の好立地。
さらに、大通り沿いの角地立地のため、視認性良好◎



■物件情報■

住所:〒532-0011 大阪府大阪市淀川区西中島4丁目3-21

アクセス:大阪メトロ御堂筋線 西中島南方駅 徒歩1分
     阪急京都線 南方駅 徒歩3分
     各線 新大阪駅 徒歩8分



構造:鉄骨造 地上11階 地下1階建

築年数:昭和48年10月


□■□■□■□■□■□■□■□■□■□■□■□■□■□■□■□■□■□■□■□■□■□■□■□


■募集■

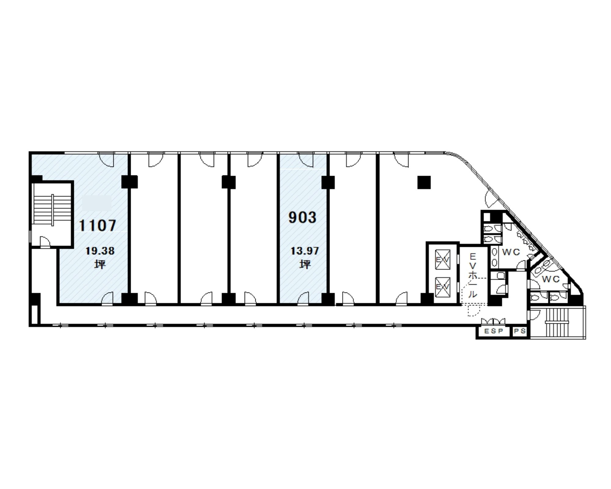
◎903:13.97坪
◎1107:19.38坪


■設備■

・24時間使用可能
・無料貸会議室あり
・エレベーター2基
・個別空調
・各部屋セコムセキュリティ完備
・入口オートロック:開閉時間(7:00~20:00)※土日祝も取扱いは同じ
・光ファイバー使用可能(NTT等直接契約)

■間取り■




■共用部写真■




□■□■□■□■□■□■□■□■□■□■□■□■□■□■□■□■□■□■□■□■□■□■□■□

最後までご覧いただきありがとうございました!
賃料などの詳細は下記QRコード、又は当サイト内検索よりご覧いただけます♪↓↓


何か気になる事がございましたら、ぜひお問い合わせください。
ご連絡お待ちしております!

株式会社NLC
☎0120-515-503

≪ 前へ|近隣無料貸会議室利用可能!両駅徒歩1分の好立地【NLC新大阪2号館】   記事一覧   駅徒歩3分の好立地オフィス!【NLC新大阪三洋ビル】|次へ ≫

トップへ戻る