大阪市の貸事務所・貸オフィスはパワーオフィス|NLC > 株式会社NLCの記事一覧 > 駅徒歩1分の角地で視認性良好◎3WAYアクセス【NLC新大阪パワービル】

駅徒歩1分の角地で視認性良好◎3WAYアクセス【NLC新大阪パワービル】

こんにちはNLCです。

今回はNLC新大阪パワービルのご紹介です。

地下鉄「西中島南方」駅出てすぐ近くの好立地♪
さらに!角地のため視認性良好◎
2021年にビル全面リニューアル工事済みです。



■物件情報■

住所:〒532-0003 大阪府大阪市淀川区西中島4丁目5-1

アクセス:大阪メトロ御堂筋線 西中島南方駅 徒歩2分
     阪急京都線 南方駅 徒歩4分
     JR各線 新大阪駅 徒歩8分



構造:鉄骨鉄筋コンクリート造 10階建

築年数:昭和53年5月


□■□■□■□■□■□■□■□■□■□■□■□■□■□■□■□■□■□■□■□■□■□■□■□


■募集■
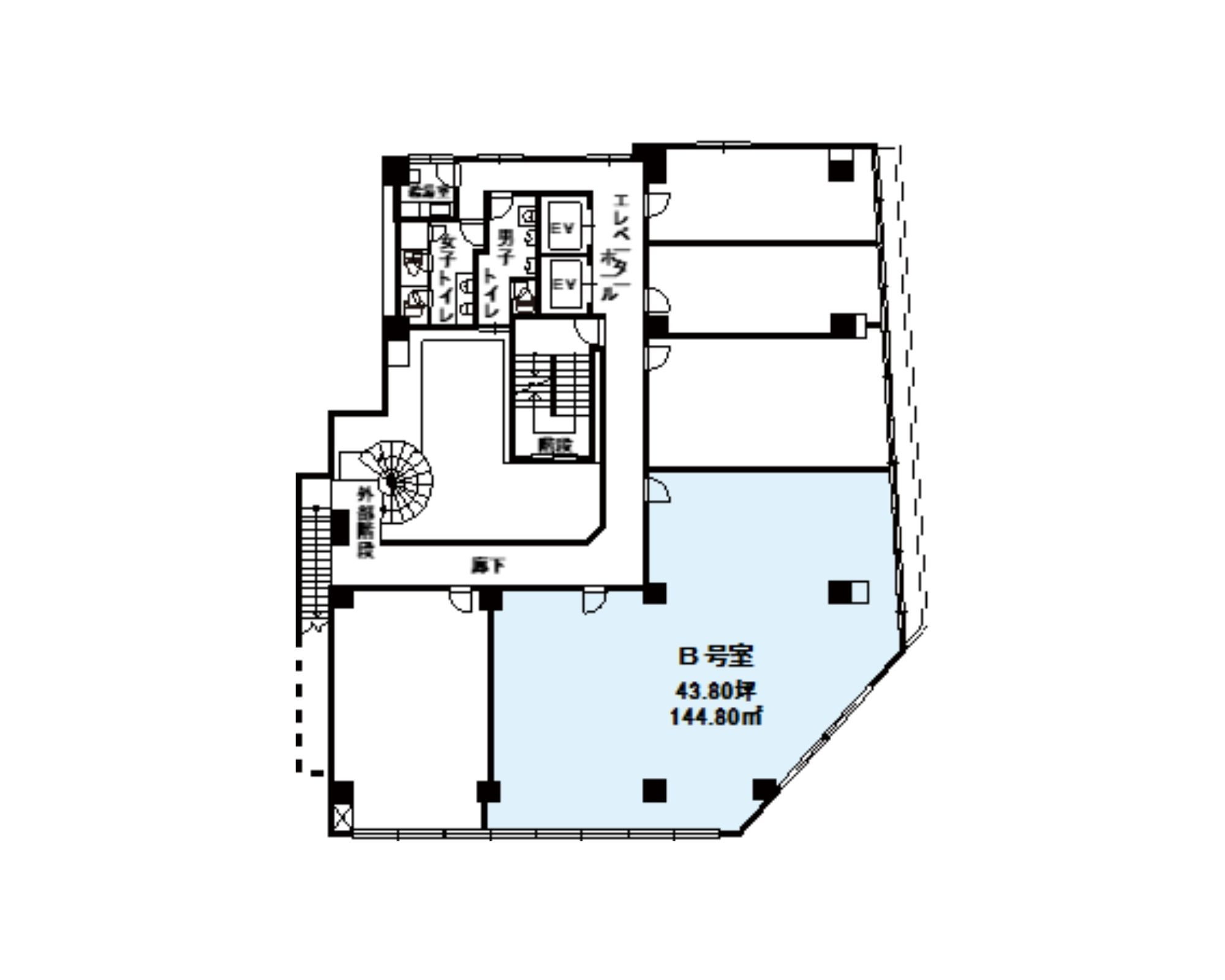
◎7-B:43.80坪


■設備■

・セコムセキュリティ完備
・1階にコンビニあり
・エレベーター2基
・駐輪場
・喫煙スペースあり
・24時間使用可能
・個別空調

■間取り■




■共用部写真■








□■□■□■□■□■□■□■□■□■□■□■□■□■□■□■□■□■□■□■□■□■□■□■□

最後までご覧いただきありがとうございました!
賃料などの詳細は下記QRコード、又は当サイト内検索よりご覧いただけます♪↓↓


何か気になる事がございましたら、ぜひお問い合わせください。
ご連絡お待ちしております!

株式会社NLC
☎0120-515-503
≪ 前へ|駅徒歩3分の好立地オフィス!【NLC新大阪三洋ビル】   記事一覧   「西中島南方駅」徒歩4分新築デザイナーズビル【NLC新大阪サウスビル】|次へ ≫

トップへ戻る