大阪市の貸事務所・貸オフィスはパワーオフィス|NLC > 株式会社NLCの記事一覧 > 3WAYアクセス可能の角地オフィス!【NLCセントラルビル】

3WAYアクセス可能の角地オフィス!【NLCセントラルビル】


こんにちは、NLCです!

今回はNLCセントラルビルのご紹介です


3WAYアクセス可能で角地立地



■物件情報

〒532-0011 大阪市淀川区西中島4丁目3-21

3WAYアクセス可能

大阪メトロ御堂筋線『西中島南方』駅 徒歩1
阪急京都線『南方』駅 徒歩3
JR・御堂筋線『新大阪』駅 徒歩8



構造:鉄骨造 地上11階 地下1階建


。●〇。●○。。●〇。●○。。●〇。●○。。●〇。●○。。●〇。●○。






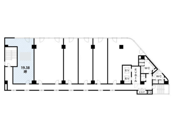
■室内

・9階
。●〇。●○。。●〇。●○。。●〇。●○。。●〇。●○。。●〇。●○。






■共用部









。●〇。●○。。●〇。●○。。●〇。●○。。●〇。●○。。●〇。●○。



さらに・・・
無料で同ビル3階の貸会議室のご利用可能
(入居者様限定!!近隣のビルの貸会議室も無料でご利用いただけます♫)



詳しくは【NLC貸会議室】で検索♪


。●〇。●○。。●〇。●○。。●〇。●○。。●〇。●○。。●〇。●○。



最後までご覧いただき、ありがとうございました!

賃料など、物件の詳細はこちらよりご覧いただけます♪↓
(360度パノラマ写真見れます!)

気になることがございましたら、ぜひお問い合わせください!
ご連絡お待ちしております✨


株式会社NLC

☎0120-515-503


≪ 前へ|駅前の繁華街!1階店舗【ドムスインビル】   記事一覧   全面リノベーション済み!新大阪駅から徒歩8分【NLC新大阪アースビル】|次へ ≫

トップへ戻る