大阪市の貸事務所・貸オフィスはパワーオフィス|NLC > 株式会社NLCの記事一覧 > セキュリティ完備◎2WAYアクセス可能!【NLC新大阪2号館】

セキュリティ完備◎2WAYアクセス可能!【NLC新大阪2号館】


こんにちはNLCです。

今回はNLC新大阪2号館のご紹介です。

近隣の貸会議室が無料で使用できます◎
駅徒歩1分の駅チカ好立地物件!



■物件情報■

住所:〒532-0011 大阪府大阪市淀川区西中島4丁目2-6

アクセス:大阪メトロ御堂筋線 西中島南方駅 徒歩1分
     阪急京都線 南方駅 徒歩1分



構造:鉄骨造 8階建

築年数:昭和58年3月


□■□■□■□■□■□■□■□■□■□■□■□■□■□■□■□■□■□■□■□■□■□■□■□


■募集■

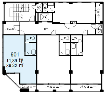
◎601:11.89坪


■設備■

・セキュリティ完備
・エレベーターあり
・24時間使用可能
・個別空調
・男女別トイレ


■間取り■



■共用部写真■













そしてさらに…
近隣の貸会議室無料でご利用いただけます✨↓↓



■□■□■□■□■□■□■□■□■□■□■□■□■□■□■□■□■□■□■□■□■□■□■□

最後までご覧いただきありがとうございました!
賃料などの詳細は下記QRコード、又は当サイト内検索よりご覧いただけます♪↓↓


何か気になる事がございましたら、ぜひお問い合わせください。
ご連絡お待ちしております!

株式会社NLC
☎0120-515-503
≪ 前へ|駅徒歩1分の好立地物件♪無料貸会議室利用可能!【NLCセントラルビル】   記事一覧   3WAYアクセス可能!新築オフィスビル【NLC新大阪エースビル】|次へ ≫

トップへ戻る