大阪市の貸事務所・貸オフィスはパワーオフィス|NLC
>
株式会社NLCの記事一覧
>
駅徒歩1分の好立地♪角地で視認性良好◎【NLCセントラルビル】
駅徒歩1分の好立地♪角地で視認性良好◎【NLCセントラルビル】
こんにちはNLCです。
今回はNLCセントラルビルのご紹介です。
3WAYアクセス可能の好立地。
さらに、大通り沿いの角地立地のため、視認性良好◎

■物件情報■
住所:〒532-0011 大阪府大阪市淀川区西中島4丁目3-21
アクセス:大阪メトロ御堂筋線 西中島南方駅 徒歩1分
阪急京都線 南方駅 徒歩3分
各線 新大阪駅 徒歩8分

構造:鉄骨造 地上11階 地下1階建
築年数:昭和48年10月
□■□■□■□■□■□■□■□■□■□■□■□■□■□■□■□■□■□■□■□■□■□■□■□
■募集■
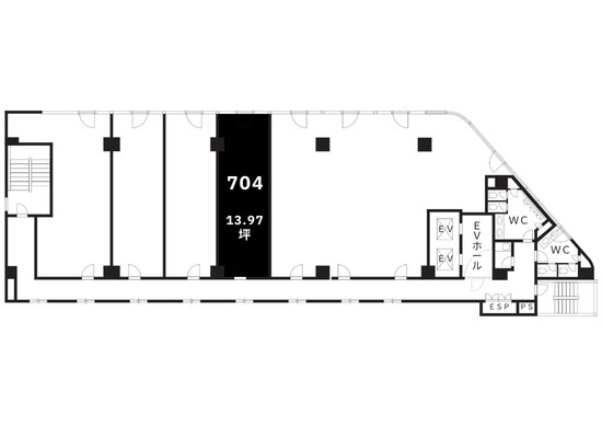
◎7階:13.97坪
■設備■
・24時間使用可能
・無料貸会議室あり
・エレベーター2基
・個別空調
・各部屋セコムセキュリティ完備
・入口オートロック:開閉時間(7:00~20:00)※土日祝も取扱いは同じ
・光ファイバー使用可能(NTT等直接契約)
■間取り■



■共用部写真■


□■□■□■□■□■□■□■□■□■□■□■□■□■□■□■□■□■□■□■□■□■□■□■□
最後までご覧いただきありがとうございました!
賃料などの詳細は下記QRコード、又は当サイト内検索よりご覧いただけます♪↓↓
何か気になる事がございましたら、ぜひお問い合わせください。
ご連絡お待ちしております!
株式会社NLC
☎0120-515-503