大阪市の貸事務所・貸オフィスはパワーオフィス|NLC
>
株式会社NLCの記事一覧
>
3WAYアクセスの大通り沿い角地ビル!【NLCセントラルビル】
3WAYアクセスの大通り沿い角地ビル!【NLCセントラルビル】
こんにちは、NLCです!
今回はNLCセントラルビルのご紹介です。
3WAYアクセス可能で便利な立地のオフィス!

■物件情報
〒532-0011 大阪府大阪市淀川区西中島4丁目3-21
大阪メトロ御堂筋線『西中島南方』駅 徒歩1分
阪急京都線『南方』駅 徒歩3分
JR各線『新大阪』駅 徒歩8分
■設備
・個別空調
・24時間使用可能
・エレベーター2基あり
・各部屋にセコムセキュリティ完備
・同ビル内に無料貸会議室あり
。●〇。●○。。●〇。●○。。●〇。●○。。●〇。●○。。●〇。●○。
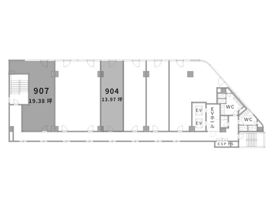
■室内
・9階 13.97坪/19.38坪
。●〇。●○。。●〇。●○。。●〇。●○。。●〇。●○。。●〇。●○。
■共用部

↑大理石調で高級感のある内装
↑カーペットなのでヒールの音が気にならない◎
↑大通り沿いの角地に立地しているため、視認性が抜群◎
↑一休憩にぴったりなスペース♪
そして・・・
無料で貸会議室のご利用可能✨
他にも!
新大阪・西中島南方周辺にも無料で使える会場がございます♬
(一部は特別料金)
。●〇。●○。。●〇。●○。。●〇。●○。。●〇。●○。。●〇。●○。
最後までご覧いただき、ありがとうございました!
賃料など、物件の詳細はこちらよりご覧いただけます♪↓
気になることがございましたら、ぜひお問い合わせください!
ご連絡お待ちしております✨